Добро пожаловать на http://vipplan.ru

Випплан Анжеро-Судженск - это тысячи проектов домов в нашем каталоге!

Вы всегда сможете найти для себя проект дома вашей мечты! Даже если этого не случилось, мы готовы в любую минуту предложить проект индивидуального дома.

Забыли пароль?
Вы еще не регистрировались?

Перейдите по ссылке ниже на страницу регистрации.

Регистрация...

Внимание!!!

В проектную документацию могут быть внесены изменения любой сложности, в соответствии в Вашими пожеланиями!

Полезные статьи

Закладка фундамента дома

Закладка фундамента является одним из первых и самых главных этапов строительства любого дома. Все здание опирается именно на эту часть конструкции. Поэтому главная функция фундамента заключается в том, чтобы нести на себе весь вес несущих стен и кровли, а значит предотвращать появление перекоса стен, проседание сооружения, что неизбежно приводит к образованию трещин в стенах здания и в фундаменте....

Где копать колодец?

Водоснабжение за городом - Анжеро-Судженск всегда было проблематичным. При отсутствии центрального водоснабжения остается только один выход – выкопать колодец. Водоносный пласт есть не везде. Как же определить, где копать колодец?...

Проекты домов и коттеджей > Каталог проектов домов > Проект двухэтажного дома с террасой Vg1010

Проект двухэтажного дома с террасой Vg1010

Проект двухэтажного дома с террасой
Зарегистрируйтесь

Проект № Vg1010


Техническое описание
Общая площадь: 147 м2
Жилая площадь: 65.02 м2
Высота здания: 7 м
Размеры дома: 13м×9м
Кол-во комнат: 5
Цокольный этаж: нет
Гараж: нет
Мансарда: нет

Kонструкция
Фундамент: Ленточный монолитный ж/б
Перекрытия: Монолитные ж/б
Материал стен: Опалубка

Архитектурный раздел
Конструктивный раздел
Инженерный раздел
АР+КР - 52 000 (Со скидкой 20%)
АР+КР+ИР - 103 450 (Со скидкой 50%)
Проект индивидуального двухэтажного жилого дома с размерами 13.54 x 8.94 м. Наружная отделка здания – фасадная штукатурка/клинкерная плитка/деревянные панели. Отделка цоколя – клинкерная плитка. Фундамент – ленточный монолитный ж/б. Наружные стены запроектированы по технологии несъемной опалубки из пенополистирольных блоков с отделкой фасадной штукатуркой, клинкерной плиткой и деревянными панелями. Внутренние стены запроектированы по технологии несъемной опалубки из пенополистирольных блоков. Перегородки – из газобетонных блоков. Пол 1-го этажа – пол по грунту. Перекрытия межэтажные – монолитные ж/б. Крыша – плоская. Окна - металлопластиковые, выполненные по индивидуальному заказу. Лестница — деревянная, выполненная по индивидуальному заказу.
Генплан застройки участка / Паспорт проекта 7000 руб / 10000 руб
Инженерный раздел (полный) 51450 руб (73500 руб)
Смета на строительство 36750 руб
Теплотехнический расчет материалов стен Бесплатно
Стоимость проекта со незначительнми изменениями 61300 руб
Стоимость проекта со средними изменениями* 72400 руб
Стоимость проекта со значительными изменениями** 75300 руб

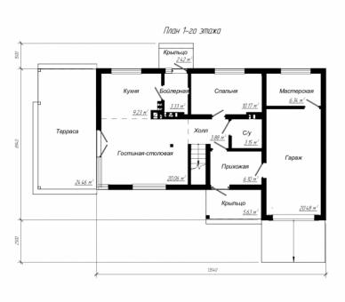
План первого этажа


Прихожая — 6,10 м2
Холл — 3,88 м2
Гостиная — 20,06 м2
Кухня — 9,23 м2
Бойлерная — 3,33 м2
С/у — 3,15 м2
Спальня — 10,17 м2
Мастерская — 6,34 м2
Гараж — 20,48 м2

Проект двухэтажного дома с террасой

Проект двухэтажного дома с террасой

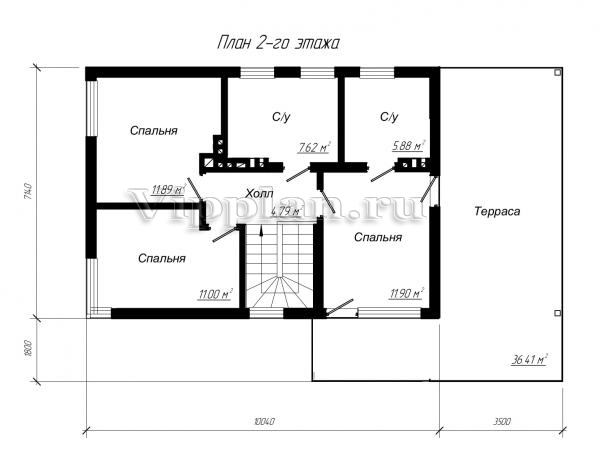
План второго этажа


Холл — 4,79 м2
Спальня — 11,90 м2
Спальня — 11 м2
Спальня — 11,89 м2
С/у — 7,62 м2
С/у — 5,88 м2
Проект двухэтажного дома с террасой Проект двухэтажного дома с террасой Проект двухэтажного дома с террасой Проект двухэтажного дома с террасой

Модификации проектов

Внесение изменений и привязка к участку строительства

В любой из проектов от компании VIPplan - Анжеро-Судженск по вашему желанию могут быть внесены изменения в материалы стен, материалы наружной отделки дома, а также будет произведена адаптация проекта под конкретный регион строительства (с учетом грунтов региона, геологических особенностей вашего участка и местных климатических условий) - БЕСПЛАТНО !!! (кроме проектов со скидкой и проектов наших партнеров).

Любой из проектов, размещенных на сайте anjero-sudjensk.vipplan.ru мы можем выполнить из требуемых вам строительных материалов: ячеистый бетон (газобетон, пеноблок), керамоблок, кирпич, шлакоблок, бетонный блок, дерево (брус, клееный брус), каркасная технология (деревянный каркас, металлокаркас (ЛСТК)).

Фасад дома и его наружную отделку так же возможно выполнить с применением различных облицовочных материалов: структурной штукатурки, (с утеплителем и без), сайдингом (пластиковый или металлосайдинг), фиброплитами, кирпича.

 
6 Избранные
проекты

Доставка проектов по России: Москва (Московская область), Санкт-Петербург (Ленинградская область), Краснодар, Ростов-на-Дону, Ставрополь, Сочи, Волгоград, Новосибирск, Белгород, Брянск, Воронеж, Саратов, Хабаровск, Астрахань, Нальчик, Владикавказ, Екатеринбург, Тюмень, Самара, Нижний Новгород, Казань, Пермь, Уфа, Челябинск, Красноярск, Ханты-Мансийск, Иркутск, Курган, Оренбург, Омск, Томск, Барнаул, Новокузнецк, Кемерово, Абакан, Чита, Якутск, Южно-Сахалинск, Петропавловск-Камчатский и страны ближнего зарубежья: Белоруссия, Украина, Казахстан