Добро пожаловать на http://vipplan.ru

Випплан Анжеро-Судженск - это тысячи проектов домов в нашем каталоге!

Вы всегда сможете найти для себя проект дома вашей мечты! Даже если этого не случилось, мы готовы в любую минуту предложить проект индивидуального дома.

Забыли пароль?
Вы еще не регистрировались?

Перейдите по ссылке ниже на страницу регистрации.

Регистрация...

Внимание!!!

В проектную документацию могут быть внесены изменения любой сложности, в соответствии в Вашими пожеланиями!

Полезные статьи

Искусственный камень

Среди современных материалов, особого внимания заслуживает искусственный камень. Естественность и красота натурального камня очевидна. Но нужно реально оценивать свои возможности и присмотреться именно к искусственному камню, так как сам искуственный камень и стоимость производства работ с ним в Анжеро-Судженске значительно дешевле чем натуральный....

Плиты перекрытий

Железобетонные плиты очень широко используются в строительстве. При помощи них возводят как промышленные объекты так жилые. Железобетонные плиты перекрытия являются главной частью любого строительного объекта вне зависимости от этажности....

Проекты домов и коттеджей > Каталог проектов домов > Проект индивидуального двухэтажного жилого дома Vg1505

Проект индивидуального двухэтажного жилого дома Vg1505

Проект индивидуального двухэтажного  жилого дома
Зарегистрируйтесь

Проект № Vg1505


Техническое описание
Общая площадь: 139.98 м2
Жилая площадь: 73.45 м2
Высота здания: 9.1 м
Размеры дома: 14.1м×11.4м
Кол-во комнат: 4
Цокольный этаж: нет
Гараж: есть
Мансарда: нет

Kонструкция
Фундамент: Свайно-ростверковый
Перекрытия: Деревянные балки
Материал стен: Пеноблоки

Архитектурный раздел
Конструктивный раздел
АР+КР - 52 000 (Со скидкой 20%)
Проект индивидуального двухэтажного жилого дома с размерами здания 14,10 x 11,40 м. Наружная отделка здания – камень. Фундамент – свайно-ростверковый (буронабивной). Наружные стены – из пенообетонных блоков, с утеплением между обрешеткой и отделкой сайдингом. Внутренние стены - из газобетонного блока. Перегородки – ГКЛ на металлическом каркасе. Пол первого этажа - пол по грунту. Межэтажное и чердачное перекрытие- деревянные балки. Крыша четырехскатная. Кровля – металлочерепица. Окна — металлопластиковые
Генплан застройки участка / Паспорт проекта 7000 руб / 10000 руб
Инженерный раздел (полный) 70000 руб
Смета на строительство 35000 руб
Теплотехнический расчет материалов стен Бесплатно
Стоимость проекта со незначительнми изменениями 61500 руб
Стоимость проекта со средними изменениями* 72000 руб
Стоимость проекта со значительными изменениями** 74800 руб

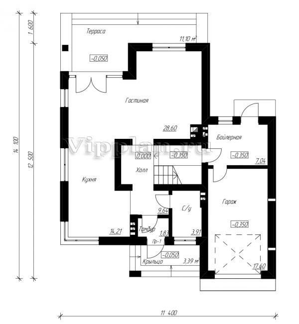
План первого этажа


Тамбур — 1,83 м2
Холл — 9,64 м2
С/у — 3,91 м2
Гостиная — 28,60 м2
Кухня — 14,21 м2
Бойлерная — 7,04 м2
Гараж — 17,60 м2

Проект индивидуального двухэтажного жилого дома

Проект индивидуального двухэтажного  жилого дома

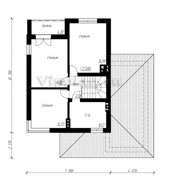
План второго этажа


Холл — 2,53 м2
Спальня — 15,99 м2
Спальня — 16,09 м2
Спальня — 12,77 м2
С/у — 8,57 м2
Проект индивидуального двухэтажного  жилого дома Проект индивидуального двухэтажного  жилого дома Проект индивидуального двухэтажного  жилого дома Проект индивидуального двухэтажного  жилого дома

Модификации проектов

Внесение изменений и привязка к участку строительства

В любой из проектов от компании VIPplan - Анжеро-Судженск по вашему желанию могут быть внесены изменения в материалы стен, материалы наружной отделки дома, а также будет произведена адаптация проекта под конкретный регион строительства (с учетом грунтов региона, геологических особенностей вашего участка и местных климатических условий) - БЕСПЛАТНО !!! (кроме проектов со скидкой и проектов наших партнеров).

Любой из проектов, размещенных на сайте anjero-sudjensk.vipplan.ru мы можем выполнить из требуемых вам строительных материалов: ячеистый бетон (газобетон, пеноблок), керамоблок, кирпич, шлакоблок, бетонный блок, дерево (брус, клееный брус), каркасная технология (деревянный каркас, металлокаркас (ЛСТК)).

Фасад дома и его наружную отделку так же возможно выполнить с применением различных облицовочных материалов: структурной штукатурки, (с утеплителем и без), сайдингом (пластиковый или металлосайдинг), фиброплитами, кирпича.

 
6 Избранные
проекты

Доставка проектов по России: Москва (Московская область), Санкт-Петербург (Ленинградская область), Краснодар, Ростов-на-Дону, Ставрополь, Сочи, Волгоград, Новосибирск, Белгород, Брянск, Воронеж, Саратов, Хабаровск, Астрахань, Нальчик, Владикавказ, Екатеринбург, Тюмень, Самара, Нижний Новгород, Казань, Пермь, Уфа, Челябинск, Красноярск, Ханты-Мансийск, Иркутск, Курган, Оренбург, Омск, Томск, Барнаул, Новокузнецк, Кемерово, Абакан, Чита, Якутск, Южно-Сахалинск, Петропавловск-Камчатский и страны ближнего зарубежья: Белоруссия, Украина, Казахстан