Добро пожаловать на http://vipplan.ru

Випплан Анжеро-Судженск - это тысячи проектов домов в нашем каталоге!

Вы всегда сможете найти для себя проект дома вашей мечты! Даже если этого не случилось, мы готовы в любую минуту предложить проект индивидуального дома.

Забыли пароль?
Вы еще не регистрировались?

Перейдите по ссылке ниже на страницу регистрации.

Регистрация...

Внимание!!!

В проектную документацию могут быть внесены изменения любой сложности, в соответствии в Вашими пожеланиями!

Полезные статьи

Выбор бригады строителей в Анжеро-Судженске

Перед началом строительства дома перед будущим хозяином загородной недвижимости в Кемеровской области обозначится несколько вариантов: обратиться в строительную компанию, специализирующуюся на малоэтажном коттеджном строительстве, воспользоваться услугами частной бригады; строить самому "своими руками"....

Плиты перекрытий

Железобетонные плиты очень широко используются в строительстве. При помощи них возводят как промышленные объекты так жилые. Железобетонные плиты перекрытия являются главной частью любого строительного объекта вне зависимости от этажности....

Проекты домов и коттеджей > Каталог проектов домов > Проект двухэтажного жилого дома в классическом стиле Vg2378

Проект двухэтажного жилого дома в классическом стиле Vg2378

Проект двухэтажного жилого дома в классическом стиле
Зарегистрируйтесь

Проект № Vg2378


Техническое описание
Общая площадь: 234.45 м2
Жилая площадь: 125.14 м2
Высота здания: 9.22 м
Размеры дома: 10.24м×16.89м
Кол-во комнат: 6
Цокольный этаж: нет
Гараж: нет
Мансарда: нет

Kонструкция
Фундамент: Ленточный монолитный ж/б
Перекрытия: Монолитная ж/б плита, деревянные балки.

Архитектурный раздел
АР+КР - 64 000 (Со скидкой 20%)
Модель проекта индивидуального двухэтажного жилого дома с размерами здания 10,24 x 16,89 м. Наружная отделка здания – штукатурка. Фундамент - ленточный монолитный ж/б. Наружные стены - керамические блоки, минеральная вата, штукатурка. Внутренние стены и перегородки – керамические блоки. Пол 1 и 2 этажа - пол по монолитной ж/б плите. Чердачное перекрытие - деревянные балки. Крыша многоскатная. Кровля - листовая сталь. Окна — металлопластиковые.
Генплан застройки участка / Паспорт проекта 7000 руб / 10000 руб
Инженерный раздел (полный) 117000 руб
Смета на строительство 58500 руб
Теплотехнический расчет материалов стен Бесплатно
Стоимость проекта со незначительнми изменениями 74150 руб
Стоимость проекта со средними изменениями* 91700 руб
Стоимость проекта со значительными изменениями** 96400 руб

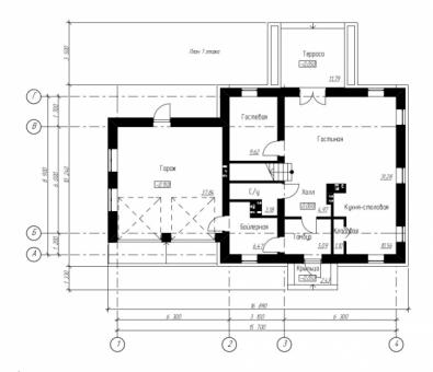
План первого этажа


Тамбур — 5,09 кв м
Холл — 4,97 кв м
Кухня — 10,56 кв м
Кладовая — 1,10 кв м
Гостиная — 31,28 кв м
Спальня — 9,62 кв м
Гараж — 37,84 кв м
С/у — 3,18 кв м
Бойлерная — 6,47 кв м

Проект двухэтажного жилого дома в классическом стиле

Проект двухэтажного жилого дома в классическом стиле

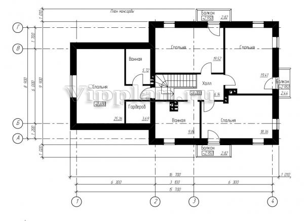
План второго этажа


Холл — 6,14 кв м
Спальня — 18,36 кв м
Спальня — 19,41 кв м
Спальня — 19,52 кв м
Спальня — 25,26 кв м
Ванная — 5,72 кв м
Гардероб — 3,69 кв м
Ванная — 9,84 кв м
Проект двухэтажного жилого дома в классическом стиле Проект двухэтажного жилого дома в классическом стиле Проект двухэтажного жилого дома в классическом стиле Проект двухэтажного жилого дома в классическом стиле

Модификации проектов

Внесение изменений и привязка к участку строительства

В любой из проектов от компании VIPplan - Анжеро-Судженск по вашему желанию могут быть внесены изменения в материалы стен, материалы наружной отделки дома, а также будет произведена адаптация проекта под конкретный регион строительства (с учетом грунтов региона, геологических особенностей вашего участка и местных климатических условий) - БЕСПЛАТНО !!! (кроме проектов со скидкой и проектов наших партнеров).

Любой из проектов, размещенных на сайте anjero-sudjensk.vipplan.ru мы можем выполнить из требуемых вам строительных материалов: ячеистый бетон (газобетон, пеноблок), керамоблок, кирпич, шлакоблок, бетонный блок, дерево (брус, клееный брус), каркасная технология (деревянный каркас, металлокаркас (ЛСТК)).

Фасад дома и его наружную отделку так же возможно выполнить с применением различных облицовочных материалов: структурной штукатурки, (с утеплителем и без), сайдингом (пластиковый или металлосайдинг), фиброплитами, кирпича.

 
6 Избранные
проекты

Доставка проектов по России: Москва (Московская область), Санкт-Петербург (Ленинградская область), Краснодар, Ростов-на-Дону, Ставрополь, Сочи, Волгоград, Новосибирск, Белгород, Брянск, Воронеж, Саратов, Хабаровск, Астрахань, Нальчик, Владикавказ, Екатеринбург, Тюмень, Самара, Нижний Новгород, Казань, Пермь, Уфа, Челябинск, Красноярск, Ханты-Мансийск, Иркутск, Курган, Оренбург, Омск, Томск, Барнаул, Новокузнецк, Кемерово, Абакан, Чита, Якутск, Южно-Сахалинск, Петропавловск-Камчатский и страны ближнего зарубежья: Белоруссия, Украина, Казахстан