Добро пожаловать на http://vipplan.ru

Випплан Анжеро-Судженск - это тысячи проектов домов в нашем каталоге!

Вы всегда сможете найти для себя проект дома вашей мечты! Даже если этого не случилось, мы готовы в любую минуту предложить проект индивидуального дома.

Забыли пароль?
Вы еще не регистрировались?

Перейдите по ссылке ниже на страницу регистрации.

Регистрация...

Внимание!!!

В проектную документацию могут быть внесены изменения любой сложности, в соответствии в Вашими пожеланиями!

Полезные статьи

Комбинированные дома

Посмотрите, насколько далеко шагнула архитектура за последние десятилетия. Сколько изменилось в облике современных городов. А задумывались ли наши родители, о том что они увидят необыкновенные небоскребы и элитные многоквартирные дома, чьи фасады напоминают обруганную капиталистическую действительность. У людей появилась возможность построить дом за городом и в тишине на природе, реализовать любые дизайнерские фантазии. Те, кто может позволить себе частный дом, не ограничены финансами. Для многих частный дом – это показатель их материального благополучия, поэтому никто из них не хочет испол...

Системы утепления фасада

Основные тепловые потери происходят через стены, фундамент и крышу. Уменьшить их можно с помощью утеплителя, создав внутри дома оптимальный для жизни климат, с достаточно ровным температурным режимом и низкой влажностью....

Проекты домов и коттеджей > Каталог проектов домов > Проект одноэтажного дома с мансардой, террасой и гаражом на две машины Vg2413

Проект одноэтажного дома с мансардой, террасой и гаражом на две машины Vg2413

Проект одноэтажного дома с мансардой, террасой и гаражом на две машины
Зарегистрируйтесь

Проект № Vg2413


Техническое описание
Общая площадь: 249.66 м2
Жилая площадь: 140.56 м2
Высота здания: 9 м
Размеры дома: 16.38м×11.28м
Кол-во комнат: 6
Цокольный этаж: нет
Гараж: нет
Мансарда: есть

Kонструкция
Фундамент: Ленточный монолитны ж/б
Перекрытия: Сборные ж/б плиты
Материал стен: Газобетон

Архитектурный раздел
Конструктивный раздел
АР+КР - 64 000 (Со скидкой 20%)
Проекта одноэтажного дома с мансардой с размерами здания 16,38 x 11,28 м. Фундамент - ленточный монолитный ж/б. Наружные стены - газобетонный блок, утеплитель, вентилируемый зазор и отделка облицовочным кирпичом. Внутренние стены - газобетонный блок. Перегородки - забутовочный кирпич (1 этаж), газобетонный блок (мансарда). Пол первого этажа - пол по сборным ж/б плитам перекрытия. Межэтажное перекрытие - сборные ж/б плиты перекрытия. Крыша - многоскатная. Кровля - металлочерепица. Окна - металлопластиковые. Лестница - деревянная.
Генплан застройки участка / Паспорт проекта 7000 руб / 10000 руб
Инженерный раздел (полный) 125000 руб
Смета на строительство 62500 руб
Теплотехнический расчет материалов стен Бесплатно
Стоимость проекта со незначительнми изменениями 73750 руб
Стоимость проекта со средними изменениями* 92500 руб
Стоимость проекта со значительными изменениями** 97500 руб

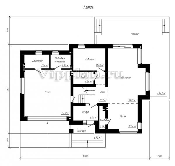
План первого этажа


Тамбур - 6,04 кв м
Холл - 7,53 кв м
Гостиная - 30,10 кв м
Кухня - 12,54 кв м
Кладовая - 2,18 кв м
С/у - 4,24 кв м
Кабинет - 11,69 кв м
Подсобка - 4,56 кв м
Бойлерная - 5,64 кв м
Гараж - 35,32 кв м

План мансардного этажа


Холл - 6,93 кв м
Бильярдная - 46,42 кв м
С/у - 12,03 кв м
Спальня - 17,88 кв м
Спальня - 18,69 кв м
Гардероб - 8,93 кв м
Спальня - 15,78 кв м
Балкон 3,16 кв м
Проект одноэтажного дома с мансардой, террасой и гаражом на две машины Проект одноэтажного дома с мансардой, террасой и гаражом на две машины Проект одноэтажного дома с мансардой, террасой и гаражом на две машины Проект одноэтажного дома с мансардой, террасой и гаражом на две машины

Модификации проектов

Внесение изменений и привязка к участку строительства

В любой из проектов от компании VIPplan - Анжеро-Судженск по вашему желанию могут быть внесены изменения в материалы стен, материалы наружной отделки дома, а также будет произведена адаптация проекта под конкретный регион строительства (с учетом грунтов региона, геологических особенностей вашего участка и местных климатических условий) - БЕСПЛАТНО !!! (кроме проектов со скидкой и проектов наших партнеров).

Любой из проектов, размещенных на сайте anjero-sudjensk.vipplan.ru мы можем выполнить из требуемых вам строительных материалов: ячеистый бетон (газобетон, пеноблок), керамоблок, кирпич, шлакоблок, бетонный блок, дерево (брус, клееный брус), каркасная технология (деревянный каркас, металлокаркас (ЛСТК)).

Фасад дома и его наружную отделку так же возможно выполнить с применением различных облицовочных материалов: структурной штукатурки, (с утеплителем и без), сайдингом (пластиковый или металлосайдинг), фиброплитами, кирпича.

 
6 Избранные
проекты

Доставка проектов по России: Москва (Московская область), Санкт-Петербург (Ленинградская область), Краснодар, Ростов-на-Дону, Ставрополь, Сочи, Волгоград, Новосибирск, Белгород, Брянск, Воронеж, Саратов, Хабаровск, Астрахань, Нальчик, Владикавказ, Екатеринбург, Тюмень, Самара, Нижний Новгород, Казань, Пермь, Уфа, Челябинск, Красноярск, Ханты-Мансийск, Иркутск, Курган, Оренбург, Омск, Томск, Барнаул, Новокузнецк, Кемерово, Абакан, Чита, Якутск, Южно-Сахалинск, Петропавловск-Камчатский и страны ближнего зарубежья: Белоруссия, Украина, Казахстан